EuroFire
Defro Home - Solum Top
Defro Home - Solum Top
Det gick inte att ladda hämtningstillgänglighet
Defro Home - Solum (Top): En elegant och kraftfull braskamin
Letar du efter en braskamin som kombinerar stil med funktionalitet? Då är Defro Home - Solum (Top) det perfekta valet för dig!
Modern design och robust konstruktion
Defro Home - Solum (Top) har en elegant och modern design med en minimalistisk stil som smälter in i alla hem. Den robusta konstruktionen av stål garanterar en lång livslängd och säker drift.
Hög effekt och effektivitet
Med en effekt på 6 - 9 kW värmer Defro Home - Solum (Top) effektivt upp ditt hem och ger dig en behaglig värme under de kalla vintermånaderna. Braskaminen har en verkningsgrad på 80 % och A+ energiklass, vilket innebär att den förbrukar minimalt med ved och är skonsam mot miljön.
Användarvänlig och bekväm
Defro Home - Solum (Top) är enkel att använda och underhålla. Den automatiska luftregleringen garanterar en optimal förbränning och den rymliga asklådan gör det enkelt att tömma askan.
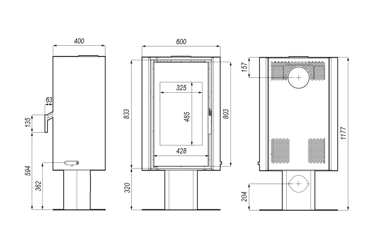
Teknisk specifikation:
- Effekt: 3,6 - 10,8 kW
- Energiklass: A
- Verkningsgrad: 75,5%
- CO-utsläpp (13 % O2): 0,09 %
- Rökkanaldiameter: 150 mm
- Rökgastemperatur: 310°C
- Maximal vedlängd: 400mm
- Vikt: 161 kg
- Garanti: 5 år
Defro Home - Solum (Top): Fördelar i korthet
- Modern design och robust konstruktion
- Hög effekt och effektivitet
- A+ energiklass
- Användarvänlig och bekväm
- 5 års garanti
Share






